Individual Homes
Thoughtfully designed homes in a walkable, community-centered neighborhood along the Milwaukee River.
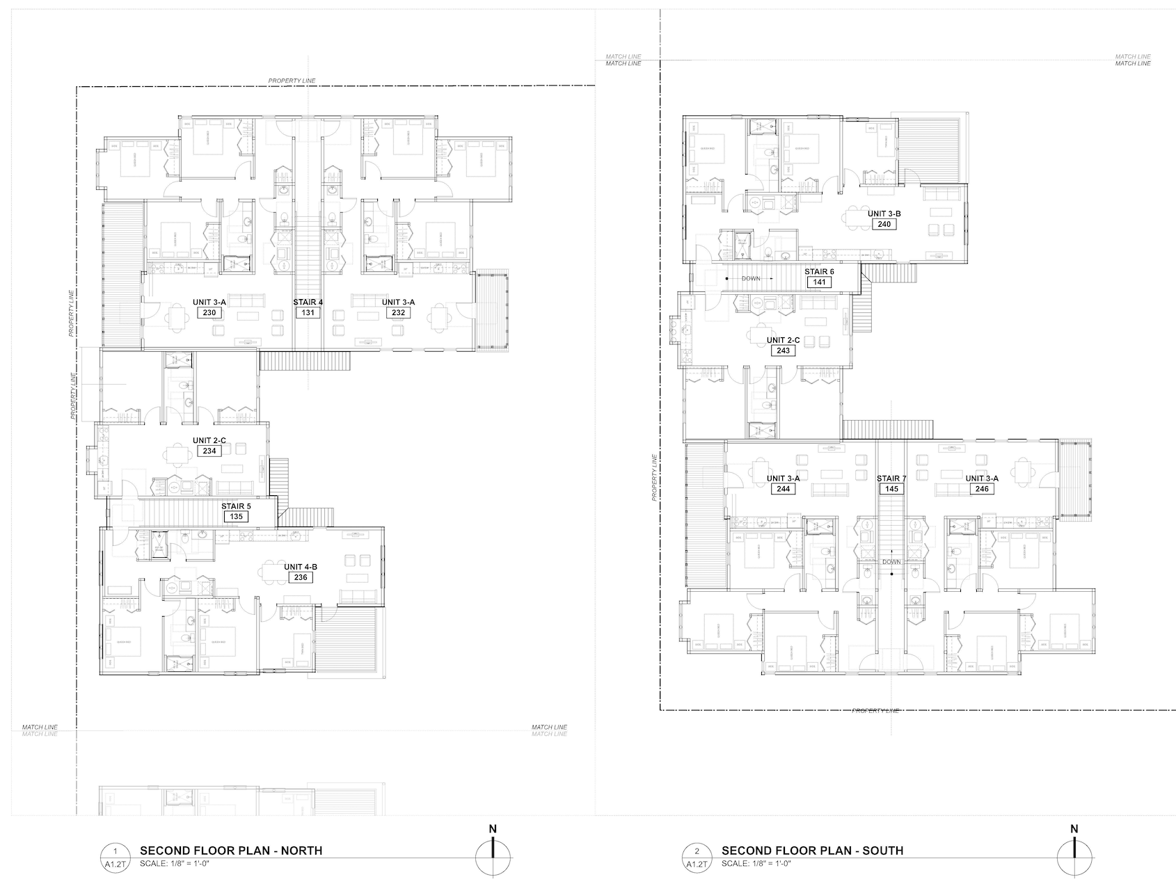
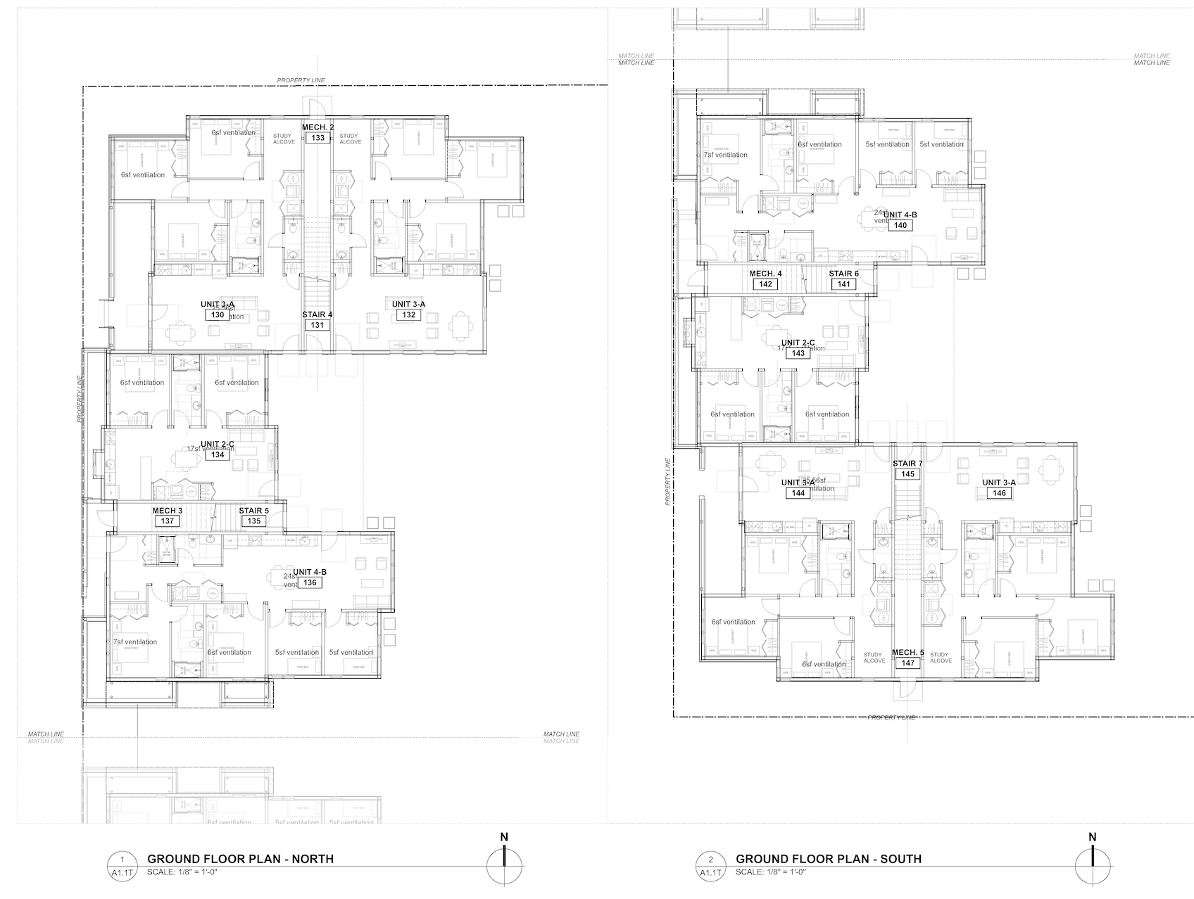
River Trail Commons will feature 40 beautifully designed homes created for people who value both privacy and community. Located beside Gordon Park, the homes offer a rare opportunity to live near nature while staying connected to neighbors, shared spaces, and the energy of Milwaukee.
Adjacent to Gordon Park, half of our condo homes in the multi-family building have private Juliette balconies overlooking the park, the forest, and the Milwaukee River.
Homes are designed for accessibility, with wide doorways. Deeded parking, including storage space above, is located under the multifamily building, available for 21 resident members. Member storage is also available in the lower level of the Commons House. The infrastructure is wired for EV charges for the surface guest parking, which may include a shared electic vehicle in the future.
For First Generation Milwaukee buyers interested in discount pricing, please INQUIRE. Those homes will be deed-restricted and must be resold to another First Generation buyer at the same value ratio (for example, if a $300,000 home is discounted by 30%, if it is subsequently valued at $600,000, it could be sold at $400,000, or 2/3 the appreciated value) to keep the home perpetually more affordable.
Homes in the multi-family building include views of the park, forest, and Milwaukee River, with many featuring private Juliette balconies. Other residences overlook the Commons garden and shared outdoor areas, creating a strong connection between private homes and community life.
Each home has a large open-concept area, with a kitchen and living/dining room area. Half of the homes in the multi-family building share a large common balcony facing the Commons garden, while the other half face the park, forest and river, enjoying Juliette balconies. The 2 bedroom / 2 office homes wrap around the south end of the multi-family building, enjoying 3 sides of windows. The duplex townhouses are plumbed for washers/dryers, but some may wish to use that space for other purposes; the multi-family homes are not, as they are directly connected to the Common House laundry facilities.
Each home has a fully equipped kitchen.
River Trail Commons Cohousing Pricing
Breakdown and pricing of home units is subject to change based on material costs, financing, and other factors.
1 bedroom / 1 bath
15 homes | 636-678 sq. ft.
Located in multi-family building.
Estimated price: $325,000
+/- 10%, with discounted units reduced by 29%
2 bedroom / 1 bath
10 homes | 805-832 sq. ft.
Located in multi-family building & townhouses.
Estimated price: $458,000
+/- 10%, with discounted units reduced by 29%
3 bedroom / 1 ½ bath
8 homes | 1243-1251 sq. ft.
All duplex townhouses.
Estimated price: $660,000
+/- 10%, with discounted units reduced by 29%
2 bedroom / 2 office / 1 ½ bath
3 homes | 1296 sq. ft.
Located in multi-family building.
Estimated price: $596,000
+/- 10%, with discounted units reduced by 29%
3 bedroom / 1 ½ bath
2 homes | 1230 sq. ft.
Townhouses w/ a large rooftop area overlooking the Commons.
Estimated price: $668,000
+/- 10%, with discounted units reduced by 29%

